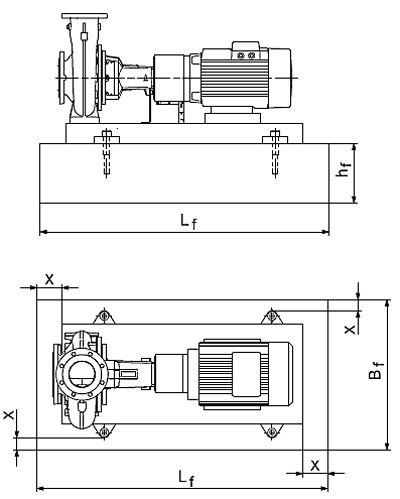
1- ویژگیهای فونداسیون
پمپ باید بر روی فونداسیونی صاف، صلب و همچنین سنگین نصب گردد تا بتواند وزن کل پمپ را به طور دائمی تحمل کند.
فونداسیون باید قابلیت تحمل هرگونه لرزش، کشش و شوک را داشته باشد.
به طور تقریبی، وزن فونداسیون باید یک و نیم برابر وزن خود پمپ باشد و از هر چهار وجه 100 میلیمتر بزرگتر از ابعاد پمپ باشد.

شکل 1: فنداسیون پمپ NB
حداقل ارتفاعی که فونداسیون باید داشته باشد از رابطه (1) بدست میآید:

که در آن 





شکل 2: مشخصات فونداسیون پمپ NB
2- گروتینگ
گروت به پخش کردن وزن پمپ بر روی فونداسیون و همچنین جلوگیری از به وجود آمدن لرزش کمک میکند. تمامی پمپهای مدل NB باید در فونداسیون خود دارای گروت باشند. گروت نباید چند تکه باشد و حتما باید به صورت یک تکه نصب گردد. برای انجام صحیح گروتینگ بهتر است از میلگردهای فولادی در فونداسیون استفاده کرد. زمان مناسب جهت انجام فرآیند گروتینگ 24 ساعت می باشد.

شکل 3: نمای جانبی فونداسیون به همراه گروت
1-2- مراحل گروتینگ:
1) سطح فونداسیون بتنی را کاملا خیس کنید.
2) قبل از نصب لوله ها چهارچوب را با گروت پر کرده و اجازه دهید تا کاملا خشک شود.
3) پس از خشک شدن گروت، پیچهای مهار را ببندید و از محکم بودن آنها اطمینان حاصل کنید.
4) تقریبا دو هفته پس از عملیات گروتینگ، گوشه های بیرونی گروت را با رنگ روغن عایق کنید تا در معرض هوا و رطوبت قرار نگیرد.
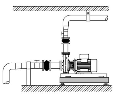
3- لولهها
هنگام نصب لولهها بدنه پمپ نباید تحت فشار قرار بگیرد. سایز لولههای ورودی و خروجی پمپ باید به درستی و بر اساس فشار ورودی پمپ انتخاب شوند. در خط مکش پمپ باید از کاهنده فشار (reducer) استفاده کرد تا از تجمع هوا جلوگیری کرد. همچنین در بخش خروجی پمپ باید از تبدیل هم مرکز استفاده گردد.

شکل 4: نحوه نصب صحیح پمپ NB
شیر قطع و وصل در هر دو سمت پمپ باید تعبیه گردد تا در زمان تمیزکاری و یا تعمیر، هوا وارد سیستم نشود. پمپ و فلنج های ورودی و خروجی باید به خوبی همتراز شوند تا تحت فشار نباشند و پمپ آسیب نبیند.
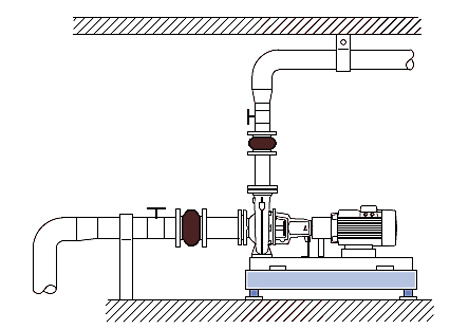
4- لرزهگیر
برای جلوگیری از انتقال ارتعاشات به ساختمان، توصیه میشود پایه پمپ از اجزای سازه با استفاده از لرزهگیر جدا شود، تصمیمگیری در این خصوص باید توسط کارفرما، طراح، یا مشاور پروژه انجام گیرد.
انتخاب لرزهگیر مناسب نیازمند در اختیار داشتن اطلاعات زیر است:
· نیروهای منتقلشده از طریق لرزهگیر
· سرعت موتور، با در نظر گرفتن درایو (در صورت وجود)
· میزان میرایی مورد نیاز بر حسب درصد – مقدار پیشنهادی ۷۰٪ است.

شکل 5: محل قرارگیری لرزهگیر ها در پمپ زمینی
انتخاب لرزهگیر بسته به پروژه متفاوت خواهد بود. در برخی موارد، انتخاب نادرست لرزهگیر ممکن است موجب افزایش سطح ارتعاش شود؛ بنابراین، اندازه و نوع لرزهگیر باید توسط تأمینکنندهی لرزهگیر مشخص گردد. در صورتی که پمپ را بر روی فونداسیونی مجهز به لرزهگیر نصب میکنید، حتماً در محل فلنجهای پمپ از لرزهگیر استفاده نمایید تا از آویزان شدن پمپ از فلنجها جلوگیری شود.

شکل 6: لرزهگیر پلاستیکی
لرزهگیر مزایای زیر را فراهم میکنند:
· جذب انبساط و انقباض حرارتی لولهها که بر اثر تغییرات دمای سیال ایجاد میشود.
· کاهش تأثیرات مکانیکی ناشی از ضربههای هیدرولیکی درون لولهها.
· عایقسازی ارتعاشات و صداهای منتقلشونده از طریق لولهها، که این مورد تنها در لرزهگیرهای نوع لاستیکی (Rubber Bellows) صدق میکند.
شرکت آبتین تهویه آسیا با سالها تجربه در زمینه تأمین انواع پمپ گراندفوس و ارائه خدمات پس از فروش تخصصی، همواره در تلاش است تا بهترین راهکارها و پشتیبانی فنی را در اختیار صنعتگران و مشتریان خود قرار دهد. جهت کسب اطلاعات بیشتر و دریافت مشاوره تخصصی، میتوانید با واحد فنی و مهندسی شرکت آبتین تهویه آسیا در ارتباط باشید.





